TYPE - A10
“เราคือผู้เชี่ยวชาญด้าน การออกแบบและก่อสร้างบ้านคุณภาพ ด้วยประสบการณ์กว่า 9 ปี ในทุกขั้นตอนเราคำนึงถึง ความทันสมัย ปลอดภัย และความคุ้มค่า “
บ้านเศรษฐีโฮม (A10)
“บ้านของเราไม่ได้เรียกว่าบ้านน็อกดาวน์ เพราะเราเป็นบ้านสร้าง โดยมีวัสดุหลักเป็นโครงสร้างเหล็ก” บ้านโครงสร้างเหล็ก เป็นคำจำกัดความที่คุณแก้ว เจ้าของแบรนด์ อธิบายถึงการทำบ้านของแบรนด์บ้านเศรษฐีโฮมในปัจจุบัน ซึ่งมีการผสมผสานความแข็งแรงของโครงสร้างคอนกรีต เข้ากับความยืดหยุ่นและการก่อสร้างที่รวดเร็วของวัสดุเหล็กเข้าไว้ด้วยกัน
Specification
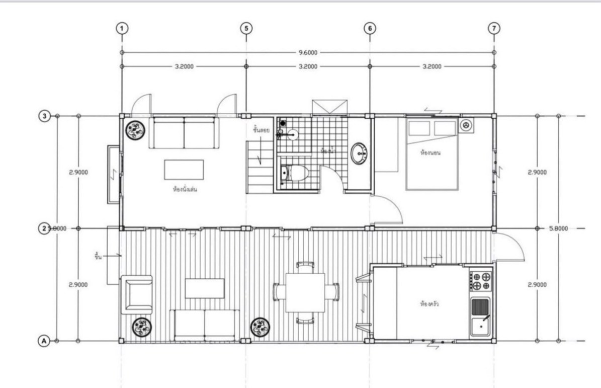
- ขนาดที่ดิน
- ขนาดบ้าน
- ขนาดพื้นที่ไช้สอย
- Bedrooms
- Bathroom
- Livingroom
- Kitchenroom
- Dinningroom
บ้านสำเร็จรูปในปัจจุบันเดินทางมาไกลกว่าคำว่าบ้านน็อคดาวน์ ทั้งการออกแบบ การเลือกใช้วัสดุ และเทคนิคการก่อสร้างให้เข้าใกล้ความเป็นบ้านอยู่จริงมากขึ้นเรื่อยๆ คอลัมน์นี้เราจะพาไปอัปเดตเทคโนโลยีการผลิตบ้านสำเร็จรูปจากผู้ผลิตบ้าน 3 สไตล์ ที่จะพาไปดูว่า บ้านที่พวกเขาพัฒนามานั้น มาไกลขนาดไหนแล้วบ้าง เพื่อเป็นข้อมูลสำหรับคนที่กำลังลังเลเลือกบ้าน สามารถตัดสินใจได้ง่ายขึ้น
Facilities
- รากฐาน : ฐานแผ่ลึก 1 เมตร กว้าง 80 ซม.
- โครงสร้าง : เป็นเหล็ก ทากันสนิมอย่างดี
- โครงผนัง : ตัวซี 3" ชุบกัลวาไนซ์ หนา 1.2 มิล
- หลังคา : ซิ้งเกิ้ลรูฟ ยางมะตอย นำเข้าจากแคนาดา หรือลอนคู่
- ผนังด้านนอก : ไม้ฝาเฌอร่า หน้า 6"
- ผนังด้านใน : แผ่นสมาร์ทบอร์ด หนา 8 มิล
- ฝ้าเพดาน : ยิปซั่มบอร์ดฉาบเรียบทาสี
- พื้น : คานเหล็ก ปูทับด้วยแผ่นพื้นปูกระเบื้อง
- ไฟส่องสว่าง : ดาวน์ไลท์ ห้องละ 2 จุด ไม่รวมเมนไฟ
- ห้องน้ำ : ปูกระเบื้องเต็มผนัง ไม่รวมเมนน้ำ
- สุขภัณฑ์ : มาตรฐาน
- ประตูหน้าต่าง : บานอลูมิเนียมขอบขาว
- สี : TOA
Photo Gallery
Price:
฿ 1,070,000.-
Setthi Home
Property Agent:
Address:
บริษัท บ้านเศรษฐีโฮม จำกัด
19/19 หมู่ 6 ตำบลบ่อเงิน อำเภอลาดหลุมแก้ว จังหวัดปทุมธานี 12140



















